田舎暮らし INAKA LIFE

田舎暮らし/京都市北区で理想の田舎暮らしをサポート
お問合せ会社概要サイトマップ

田舎のオススメ物件

MENU
田舎暮らし宣言
田舎暮らしのポイント
住まい選びのポイント
田舎暮らしサポート室
田舎のおすすめ物件
売却実績
田舎暮らしご相談
内山産業の誓い
HOME

物件をお売りになりたい方

近江日野町の古民家

京の匠 京都の伝統をかたちに

田舎暮らしレポート

電話番号:075-451-3030 / ファックス番号:075-451-3333

田舎暮らしサポート室 ご相談はこちらから


物件写真物件一覧へ

物件詳細物件一覧へ


住宅No. 80
価格 300万円
所在地 〒622-0004 京都府南丹市園部町小桜町
土地坪数 112.18平米 (33.93坪)
延べ床面積 128.26平米 (38.79坪)
交通 JR山陰線園部駅から京阪京都交通バス乗車約5分小桜バス停から徒歩約5分
京都縦貫自動車道自動車道園部インターから約3km車で5分
土地 主な地目:宅地(現況:宅地)
     112.18平米(33.93坪)
合計面積:112.18平米(33.93坪)
接道 東側が幅員約4mの公道に間口約13.5m接しています。
舗装有り
地勢 西に開けた平坦地が33.93坪
都市計画 市街化区域
第一種低層住居専用地域
建蔽率:60% 容積率:100%
設備 電気:関西電力
飲用水:公営水道
トイレ:公共下水道・くみ取り
排水:公共下水道・側溝
ガス:プロパンガス
母屋 木造瓦葺二階建
延べ床面積 128.26平米(38.79坪)
建築年月日 1977-12-01
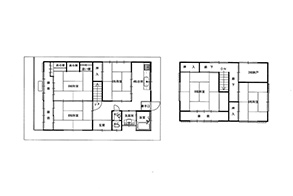
間取り 5SDK
物件概要 1階6帖和、6帖和、6帖和、4帖台所、浴室、洗面所、トイレ
2階8帖和、6乗和、3帖納戸
お奨めポイント 間口の広い高台に建つ見晴らしの良い和風民家です。厳選された料が使用され、和室は書院造りの床の間、違い棚や欄間が有り木製建具、雨戸等純和風建築の建物です。京都縦貫自動車道が前線開通し名神高速自動車道や中国自動車道とも繋がり車でのアクセスが良くなり大変便利です。
備考 水廻りの補修、畳、障子の新調、美装工事など補修工事が必要です。詳しくは当社係員迄お問合せ下さい。
取引態様 媒介(仲介)
更新日 2024年5月15日
プライバシーポリシー
Copyright UCHIYAMA SANGYO Co,Ltd. All Right Reserved.